Bürogebäude der RWTH Aachen am Königshügel
Bauherr:
RWTH Aachen
Leistungsphasen:
Leistungen bei Gebäuden
gem. Teil II, § 15 HOAI, LPH 1-9
Leistungen bei Gebäuden
gem. Teil II, § 15 HOAI, LPH 1-9
Architekturfotografie:
Jörg Hempel
Tag der Architektur 2021:
Neubau eines Bürogebäudes der RWTH Aachen auf der Melatener Straße - Königshügel
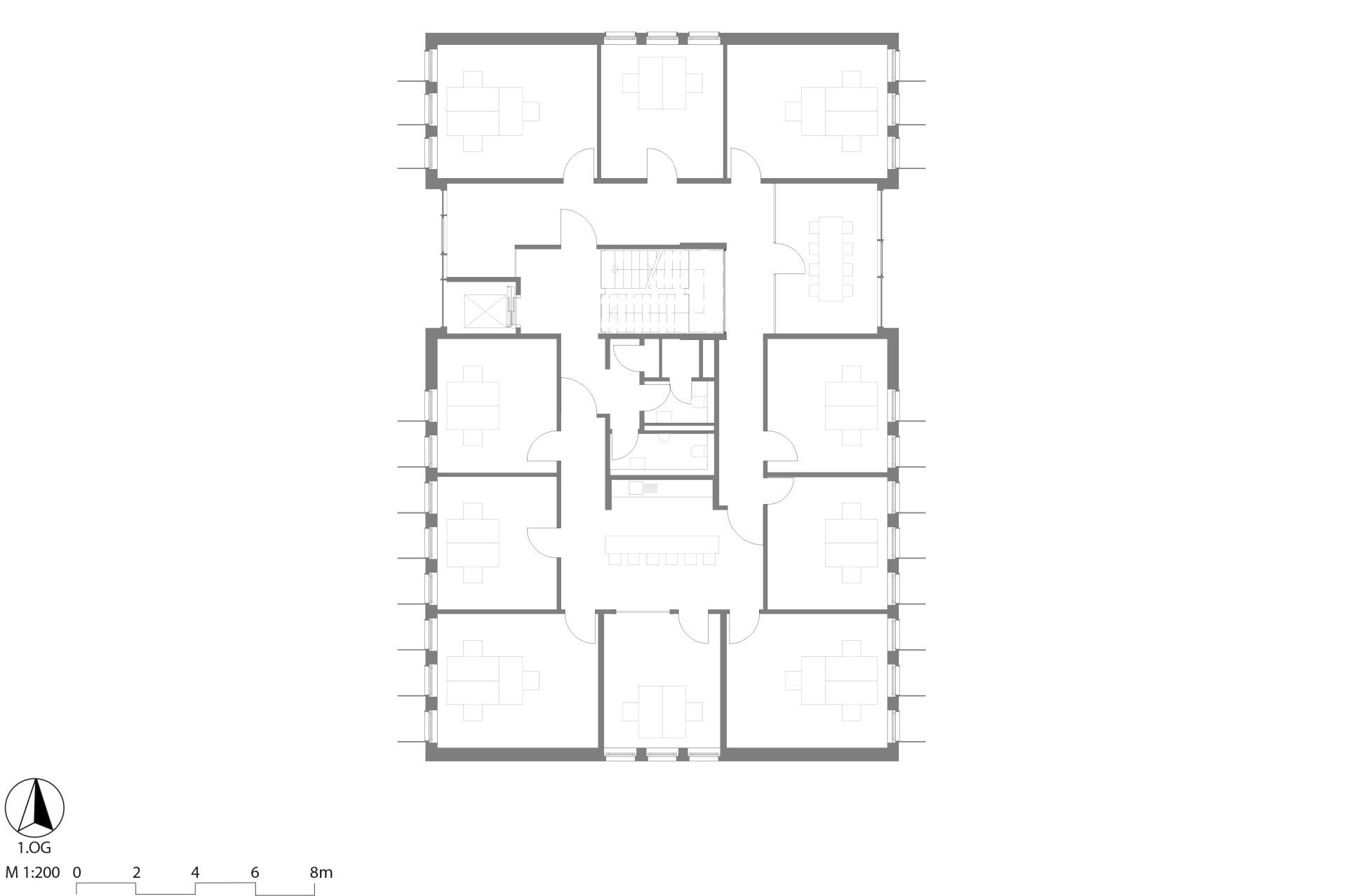
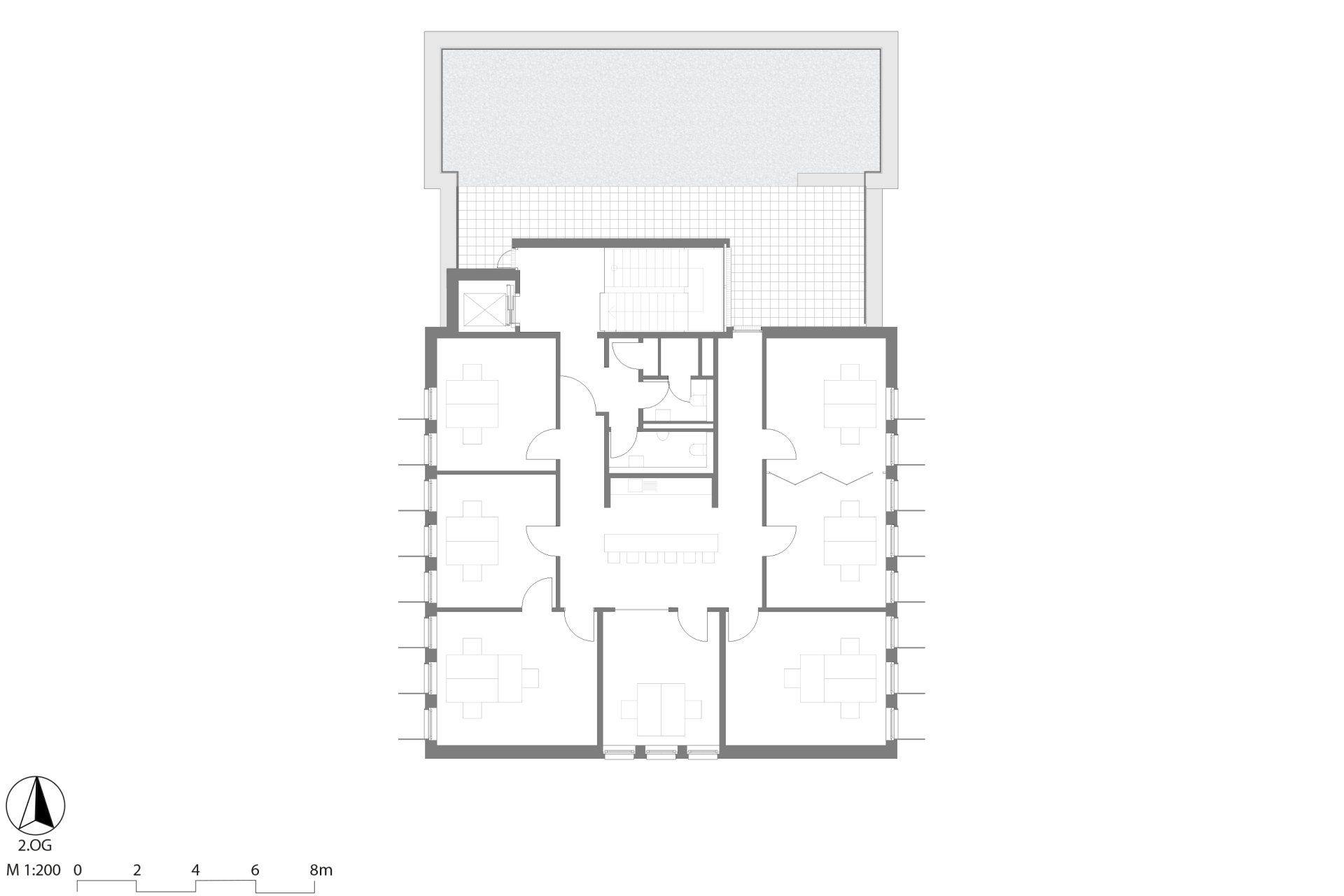
Am Königshügel an der Melatener Straße liegt unser Bürogebäude verschiedener Institute der RWTH Aachen mit insgesamt 64 Arbeitsplätzen. Das Bürogebäude befindet sich in einem heterogenen Gebiet am Königshügel, welches von Wohngebäuden, Sportplätzen und etlichen Hochschulbauten der RWTH geprägt ist. Es liegt auf dem Gelände des ehemaligen botanischen Gartens mit einem wertvollen Baumbestand. Es fügt sich durch die kompakte Bauweise gut in die umliegende Bebauung ein und ist durch die hervortretenden roten Sonnenschutzschwerter strukturiert. Sie stehen im starken Kontrast zu der weiß verputzten Lochfassade. Der einzigartige Schattenwurf verändert die Erscheinung des Baukörpers im Laufe des Tages. Das Gebäude liegt, der Topographie folgend, erhöht über der Straße.
Das Gebäude unterteilt sich in zwei geschlossene Baukörper, zwei- und dreistöckig mit einer Lochfassade. Verbunden werden beide durch eine transparente, lichtdurchflutete Glasfuge, welche als Eingangsbereich und öffentlicher Bereich dient. In der Glasfuge finden ebenfalls Besprechungsräume ihren Platz, die auf den ehemaligen botanischen Garten ausgerichtet sind, sowie die vertikale Erschließung der beiden angrenzenden Baukörper. Das Gebäude wurde nach der DIN 18040-1 barrierefrei gestaltet. Die Erschließung des Gebäudes erfolgt über den Zugang zum Haupteingang im Erschließungstrakt des Gebäudes und über die Parkplatzzone barrierefrei unter dem Baukörper.
Die Tragstruktur ist so gewählt, dass sie stets eine flexible und nachhaltige Organisation der Büros gewährleistet. Die Büroräume für 2-3 Personen sind an der äußeren Peripherie angesiedelt, wodurch sie mit genügend Tageslicht versorgt werden und somit ein gutes Arbeitsklima entsteht. Zum Schutz vor zu starker Sonneneinstrahlung wurden starre vertikale Sonnenschutzelemente an der Fassade angebracht. Die Sonnenschutzschwerter sind so angeordnet, dass der Blick auf die Natur bzw. auf den ehemaligen botanischen Garten nicht verdeckt wird. Die Versorgungsräume, wie Sanitärräume, Technikräume und Teeküchen befinden sich im Gebäudekern.
Im Inneren des Gebäudes harmonieren die Sichtbetonwände mit den weiß verputzten Wänden und den gräulichen Fliesen. Die natürlich belassenen Materialien erzeugen zeitgemäße Ästhetik.
Das sehr kompakte Gebäude ist energetisch sparsam. Neben der Gebäudeversorgung durch Fernwärme und der kontrollierten Be- und Entlüftung trägt ebenfalls die Verwendung von mineralischen Dämmstoffen und Putzen zur Nachhaltigkeit des Gebäudes bei. Durch die Kompaktheit des Baukörpers und ein geringes Verhältnis der Hüllfläche zum Volumen wird der Energiebedarf des Gebäudes sehr gering gehalten. Das nachhaltige Gebäude übertrifft deutlich den KFW 70 Standard.






